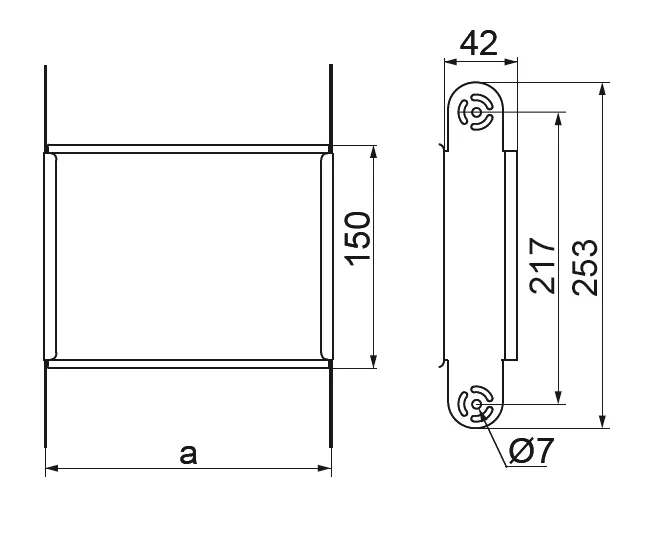
Елемент вертикального повороту регульований ELBL200H42 (143003)

Виробник: BAKS
Артикул: ELBL200H42
Ціна за дзвінком

Приклад монтажу з перевищенням стандарту для розподілу кабелів
- Кабельний лоток і кабельна драбина до стіни

 

Товщина лотка 1,0 мм
Драбина Матеріал Товщина1,2 мм
Макс. Відстань між опорами 1,5 м
Макс. Безпечне навантаження 20 кг/м на кожен рівень

 

Кріплення несучого швелера до стіни
- 3 анкерних болта PSROM10x120

Характеристики товару

Назва атрибуту Значення атрибуту
Характеристики стандартів
Вогнестійкість Вогнестійкий E-90
Системи кабельних трас
Типи елементів елемент
Висота борта H42
Товщина листа 0.7 мм
Вага 1шт [кг] 0.39
Кількість [шт] 1
Розмір a [мм] 200