Редуктор симетричний RSKMC600/500H50 (811550)

Виробник: BAKS
Артикул: RSKMC600/500H50
Ціна за дзвінком

Зміна ширини кабельної траси.

Матеріал

S - Сталь, оцинкована методом Сендзіміра PN-EN 10346:2015-09

Доступні варіанти оздоблення:

F - гарячеоцинкована сталь PN-EN ISO 1461:2023-02

E - нержавіюча сталь

Додаткова інформація

– для монтажних елементів використовуйте з'єднувачі LKM... та болти SGKM6x14

– кріпильні кришки в комплекті

Характеристики товару

Назва атрибуту Значення атрибуту
Системи кабельних трас
Типи елементів редуктор
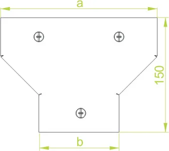
Висота борта H50
Товщина листа 2.0 мм
Властивості матеріалу S - оцинкована сталь за методом Сендзіміра, F - гарячеоцинкована сталь, E - нержавіюча сталь
Вага 1шт [кг] 3
Кількість [шт] 2
Розмір a [мм] 600
Розмір b [мм] 500